Нашол на просторах рунета http://escudo.ya1.ru
Эксцентрики дают возможность регулировать развал в диапазоне -1,75...0 градусов и 0...+1,75 градуса, в зависимости от того, в какую сторону повернуть шайбу. В нашем случае два эксцентрика ставятся в верхние отверстия передних стоек. Шайбы ставятся под головку болта эксцентрика лепестками к двигателю.
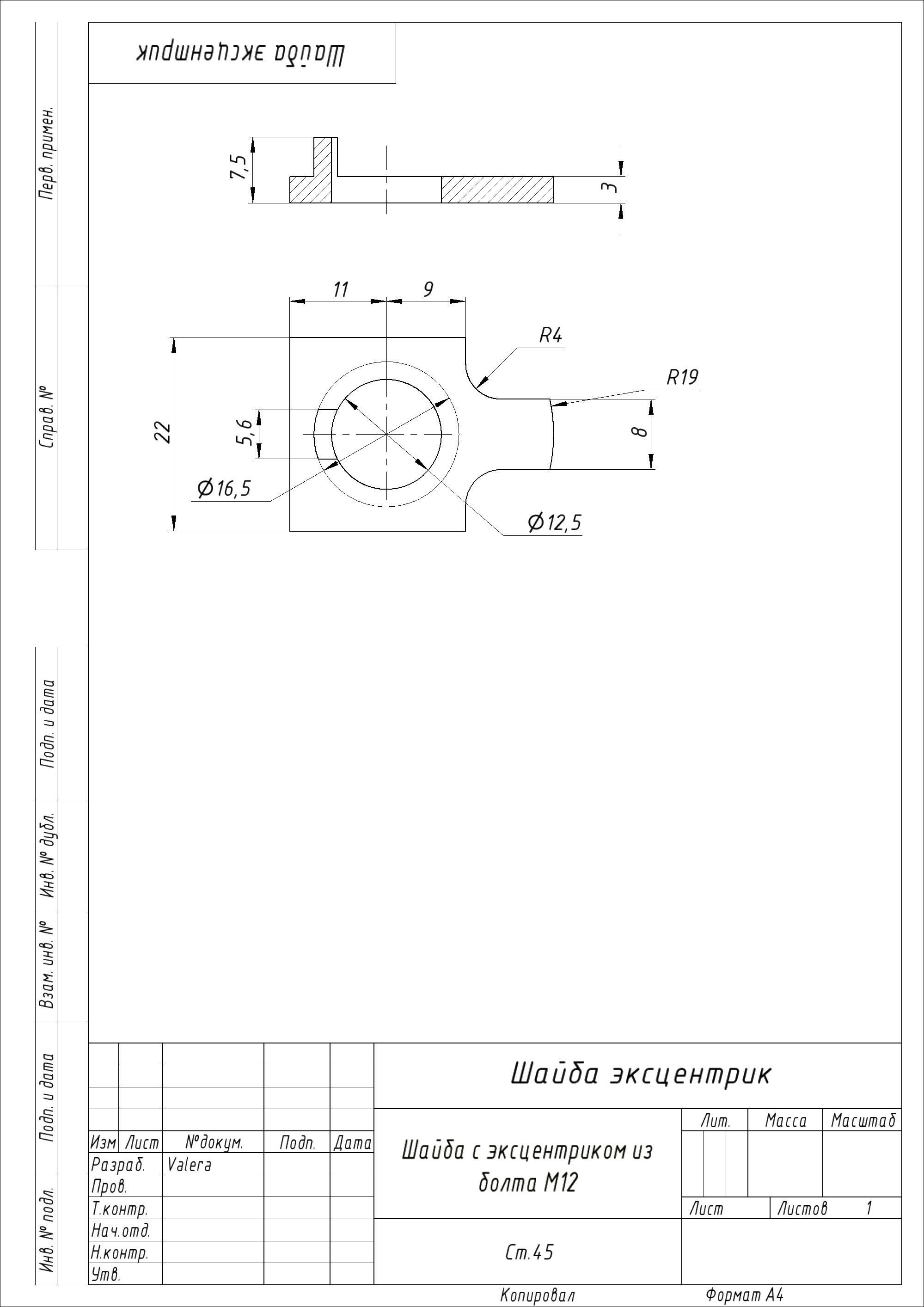
Т.к. заказывать из США не всем просто, я отдал эксцентрики для замера и составления чертежей. Один комплект из двух чертежей для вытачивания из прутка, второй для вытачивания из автомобильного болта M12. Болт М12 покупается в любом автомагазине, я бы купил длиной 12 см при длине резьбы 3 см.
У эксцентрика из прутка полезное смещение 3 мм, у эксцентрика из болта 2 мм. Для исправления развала при лифте передней оси на 5-7 см хватит обоих.
Эксцентрики из фирменного набора имеют диаметр 9 мм, родные болты крепления стойки имеют диаметр 12 мм (М12).
В связи с тем, что эксцентрики тоньше, они имеют повышенную прочность 12,9, полученную путем закалки. Обычный автомобильный болт М12 имеет прочность 8,8.
Если точить эксцентрик из болта М12, то прочность эксцентрика будет на 25% меньше, чем прочность болта, который штатно крепит стойку, т.к. фактически эксцентрик получится диаметром 9 мм. Если точить из прутка, то можно закалить полученные эксцентрики до нужной прочности.
Фирменные шайбы имеют острые выступы на поверхности, которая прилегает к стойке. Это сделано для того, чтобы шайба не проворачивалась во время регулировки.
При установке выточенных шайб, на которых нет таких выступов, за этим придется следить.
Эксцентрик:
Нажмите для просмотра прикрепленного файла
Шайба для эксцентрика:
Нажмите для просмотра прикрепленного файла
Эксцентрик из болта М12:
Нажмите для просмотра прикрепленного файла
